Bydlení téměř v centru Českých Budějovic s výhledem na Černou věž, vlastním parkovacím místem v uzavřeném dvoře a terasou orientovanou do vnitrobloku pro relaxaci po práci. Tento byt 3+kk je právě na prodej a ideální příležitostí pro aktivní jednotlivce či páry, kteří chtějí bydlet v centru bez kompromisů a kvalitně.
Byt se nachází ve 4. patře (5) zděného bytového domu bez výtahu, což oceníte ve smyslu klidu v domě bez slyšitelného ježdění výtahu a s nízkými náklady na správu domu.
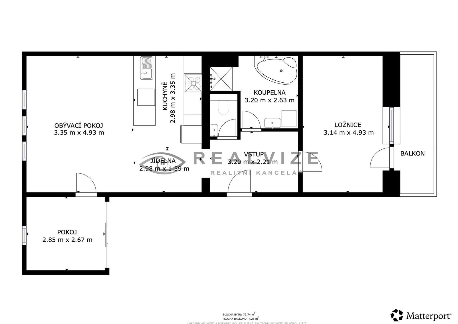
Koupelna disponuje rohovou vanou a sprchovým koutem, WC je samostatné. V ložnici je vestavěná prostorná skříň.
Střešní okna do ulice jsou dřevěná zn. Velux, v pokoji s terasou jsou okna plastová. Nabízí se s vybavením, které je vidět na fotkách, ale po dohodě s budoucím kupujícím je možné byt vyklidit.
Byt je vytápěn pomocí radiátorů přes centrální plynový kotel pro celý dům, který zajišťuje rovněž ohřev vody.
V koupelně je navíc podlahové topení (elektrický rošt) s vlastním ovladačem. Do budoucna se řeší možnost napojení na teplárnu.
K dispozici je společný sklep a kolárna.
Součástí kupní ceny je podíl na pozemku v uzavřeném dvoře, kde se nachází parkovací stání k bytu, což je v této lokalitě obrovskou výhodou.
Na náměstí Přemysla Otakara II. dojdete pohodlně za 5 minut.
Byt je volný ihned.
V případě zájmu vám zajistíme výhodné financování.
Pro více informací a termín prohlídky volejte makléřce.














